Mobirise

Morluniau

... translates into English as 'Seascapes'.

This beautifully presented holiday home is right on the seafront by the Port Dinorwic at Y Felinheli on the Menai Straits between Bangor and Caernarfon and just opposite Anglesey, with Llanberis only 7 miles inland and therefore offers the perfect location to explore the very best of North Wales.

Furnished to a high standard, this comfortable 3-storey modern house has magnificient views over the Menai Straits from all three floors. 

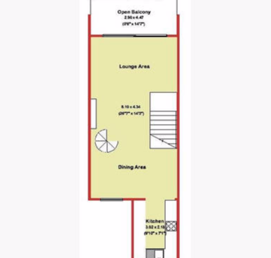
Open-plan Living

Morluniau's comfortable and stylish living accommodation caters for up to six guests and extends over the whole of the first floor. During the day sunlight floods in through the large windows enticing you onto the balcony, and in the evening you'll be out there again taking yet another photo of the breathtaking sunset.

3 BEDROOOMS

  1. Master bedroom - situated on the ground floor and has a Super King sized bed, an ensuite bathroom and large windows looking out onto the water and over to Anglesey. A door leads out to a decked area that gets the sun from 11.00 right through until sunset. 
  2. Bedroom 2 - situated on the second floor is accessed via a spiral staircase from the living area. It has a Super King sized bed which can be separated to form two singles if required. It also has its own ensuite bathroom and far-reaching sea views.
  3. Bedroom 3 - situated on the ground floor is a twin-bedded room and gets the morning sunshine. Its bathroom is just along the corridor.  
The 3-storey layout enables sea-views from most of the rooms. There is a stairlift fitted to the main staircase allowing for easy disabled access from the ground to the first floor - please contact us for further details. Please note that the spiral staircase giving access to bedroom 2 is not child-friendly.

Address
Morluniau,
9 Ffordd Glyder,
Y Felinheli,
LL56 4QX


Contacts
The Owners - Jilly & Richard
Email: jilly@theblands.org   Phone: 07779 264566

Links
Morluniau - the Manual
How to find us - Route
Y Felinheli info - MAP

Y Felinheli official website
Port Dinorwic websitetide tables / today

Our other rental properties:
Chalet Beaumont, Paradiski
Le Haut Provost, Brittany

Feedback
Please send us your ideas and suggestions. Any feedback would be appreciated.

Offline Website Creator